Nije lako urediti 32 kvadrata tako da u stanu imate osećaj prostranstva
STANČIĆ U NJUJORKU: Kako urediti 32 kvadrata tako da krevet ne bude u dnevnoj sobi Foto: Promo/Allen Killcoyne 

Ovaj tekst preuzet je sa sajta Lisa

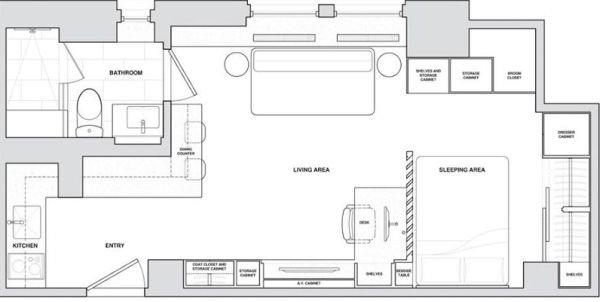
Kako smestiti tri sobe u 32 kvadrata: dnevnu, spavaću i radnu? Odgovor daju vešti arhitekti koji su upravo takvu čaroliju izveli u ovom stančiću na Menhetnu.
stan-mali-stan.jpg
Foto: Promo/Allen Killcoyne 


Nije baš lako urediti 32 kvadrata tako da u stanu imate osećaj prostranstva! Trik je u tome, kako kaže Stiven Kilkojn, da ne završite s krevetom smeštenim u dnevnoj sobi.

Upravo tu sudbinu su bili rešeni da izbegnu stručnjaci njegove firme kada su se prihvatili redizajniranja stana na Menhentu za svog klijenta.
stan-mali-stan.jpg
Foto: Promo/Allen Killcoyne 


Imajući u vidu izduženu osnovu stana, iskoristili su zadnji deo da u njega smeste komforan krevet, a zaklonili su ga lakom pregradom koja daje dovoljno svetlosti ali i dovoljno intime u ovoj oazi za odmor. Prostranosti ovog lepog kutka u srcu Njujorka umnogome doprinosi i izbor boja i materijala.

Nema previše detalja, mnogi elementi izrađeni su u istoj boji, a izbegnute su i podne prostirke koje bi možda prostor učinile ženstvenijim i udobnijim.
stan-mali-stan.jpg
Foto: Promo/Allen Killcoyne 


Izvor: Lisa / Moj stan

Foto: Promo / Allen Killcoyne

Sa sajta Lisa pročitajte još:

Moskovska mansarda od 60 kvadrata: stančić i kamin koji nikad nećete zaboraviti

22 kvadrata: stančić kao lego kocke (VIDEO)

Najlepši mini stan na Menhetnu

Garsonjera od 20 kvadrata koja se uvećava 3 puta (VIDEO)

Najmanji stan za srećnu ženu (VIDEO)