Kurir
Kurir
  • Naslovna
  • Najnovije
  • Vesti
  • Stars
  • Sport
  • Hronika
  • Planeta
  • Zabava
  • Biznis
  • Zdravlje
  • Stil kurir
  • TechVision
  • Održiva budućnost
  • Region
  • News
  • Izbor urednika
Još
KategorijeOstalo
  • Kultura
  • Pop kultura
  • Žena
  • Život
  • Zanimljivosti
  • Ludi svet
  • Auto
  • Jesenji TV program
  • Igrice
Još
  • Naslovna
  • Najnovije
  • Vesti
  • Stars
  • Sport
  • Hronika
  • Planeta
  • Zabava
  • Biznis
  • Zdravlje
  • Stil kurir
  • TechVision
  • Održiva budućnost
  • Region
  • News
  • Izbor urednika
Još
TV Uživo
KategorijeOstalo
  • Kultura
  • Pop kultura
  • Žena
  • Život
  • Zanimljivosti
  • Ludi svet
  • Auto
  • Jesenji TV program
  • Igrice
Još
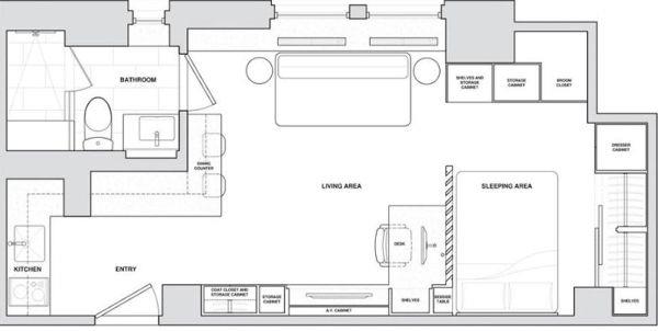
STANČIĆ U NJUJORKU: Kako urediti 32 kvadrata tako da krevet ne bude u dnevnoj sobi
Reaguj
Komentariši
stan-mali-stan.jpg
1 / 7
Promo/Allen Killcoyne 
Promo/Allen Killcoyne  
stan-mali-stan.jpg
2 / 7
Promo/Allen Killcoyne 
Promo/Allen Killcoyne  
stan-mali-stan.jpg
3 / 7
Promo/Allen Killcoyne 
Promo/Allen Killcoyne  
stan-mali-stan.jpg
4 / 7
Promo/Allen Killcoyne 
Promo/Allen Killcoyne  
stan-mali-stan.jpg
5 / 7
Promo/Allen Killcoyne 
Promo/Allen Killcoyne  
stan-mali-stan.jpg
6 / 7
Promo/Allen Killcoyne 
Promo/Allen Killcoyne  
stan-mali-stan.jpg
7 / 7
Promo/Allen Killcoyne 
Promo/Allen Killcoyne  
Reaguj
Komentariši
Kurir
  • Naslovna
  • Najnovije
  • Vesti
  • Stars
  • Sport
  • Hronika
  • Planeta
  • Zabava
  • Biznis
  • Zdravlje
  • Stil kurir
  • TechVision
  • Održiva budućnost
  • Region
  • News
  • Marketing
  • Kontakt
  • Impressum
  • Politika o kolačićima
  • Arhiva
  • Politika privatnosti
  • Uslovi korišćenja
© 2025. MONDO, Inc. Sva prava zadržana.