Ovim poduhvatom Grad Novi Sad će omogućiti nesmetane uslove za život stanovnicima 94 stambene jedinice

Gradska uprava za građevinsko zemljište i investicije izvodi radove na infrastrukturnom opremanju bloka za stambeno zbrinjavanje izbeglih lica u Ulici Milana Tepića u Veterniku. Ovim poduhvatom Grad Novi Sad će omogućiti nesmetane uslove za život i svakodnevno funkcionisanje za stanovnike 94 stambene jedinice, koji su svoj novi dom pronašli u novoizgrađenim objektima.

whatsapp-image-20220908-at-12.44.24-pm.jpg
Foto: Grad Novi Sad

Sredstva potrebna za opremanje bloka u iznosu od 36 miliona dinara opredeljena su Programom uređivanja građevinskog zemljišta za 2022. godinu. Uređenje bloka podrazumeva izgradnju saobraćajnih površina, spoljnih instalacija vodovoda i kanalizacije i javnog osvetljenja, a prema ugovorenom roku, radovi će trajati do kraja novembra.

whatsapp-image-20220908-at-12.44.23-pm.jpg
Foto: Grad Novi Sad

Planirane saobraćajne površine obuhvataju kolski prilaz stambenom objektu, kao i pripadajući parking i pešačke staze, te povezivanje predmetnog prostora na postojeću saobraćajnu mrežu.

whatsapp-image-20220908-at-12.44.24-pm-1.jpg
Foto: Grad Novi Sad

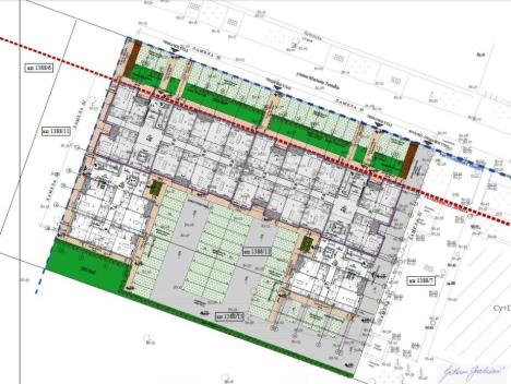
Saobraćajne površine gradiće se u četiri kraka, a kolski i pešački pristup će biti omogućen preko postojeće Ulice Milana Tepića. Nova saobraćajnica imaće 66 parking mesta, sa upravnom šemom parkiranja. Sa severne strane objekta, uz Ulicu Milana Tepića, predviđeno je 24 parking mesta, od kojih će 4 biti rezervisana za osobe sa invaliditetom. Sa južne strane strane, uz novoplaniranu saobraćajnicu, nalaziće se preostala 42 parking mesta, od kojih će 4 biti smeštena ispod nadstrešnice objekta. Oko samog objekta predviđen je trotoar promenljive širine, kao i ulazni trotoar, a pristup objektu za osobe sa invaliditetom biće obezbeđen preko pešačke rampe adekvatnog nagiba. Odvođenje atmosferskih voda regulisano je nivelacijom saobraćajnih površina i slivničkim rešetkama.

Osim saobraćajnih površina, ova investicija podrazumeva i priključenje vodovodne i kanalizacione mreža u samom bloku na postojeću uličnu mrežu, kao i postavljanje 22 stuba javnog osvetljenja. U narednom periodu pristupiće se i pejzažnom uređenju ovog prostora, koje podrazumeva humuziranje, sadnju trave i drveća, kao i postavljanje urbanog mobilijara.

Grad Novi Sad